Wohn- und Geschäftshaus Groninger Straße 78

Der kantige und formklare Bau mit seiner auffallend roten Klinkerfassade steht präsent und sichtbar am Stadtrand von Leer, wirkt richtungsweisend und lenkt den Besucher einladend in das neue, nachhaltige Wohnquartier an der Groninger Straße.
Die rot verfugte, homogene Fassade ist geprägt von schwarz gerahmten, großen Fensterflächen und einer hellen, modernen Balkonstruktur, in die sich nach außen geformte Wohnungen einfügen. Alle Ebenen und Nutzungseinheiten des Gebäudes verfügen über Außenbereiche in Form von Terrassen, Balkonen oder Dachterrassen.
Von innen lichtdurchflutet und großräumig bietet das Wohn- und Geschäftshaus Platz für unterschiedliche Nutzungsformen und Raumaufteilungen, die sich langfristig und sinnvoll durchdacht über die Jahre in ihrer Funktion und Ausgestaltung flexibel verändern können und nachhaltig Bestand haben.


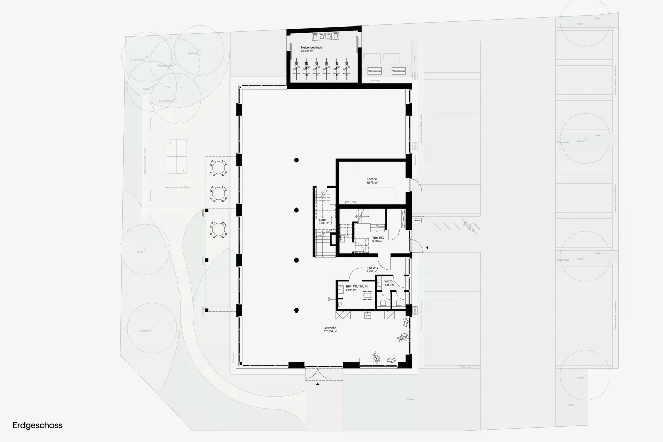
Im Erdgeschoss des Gebäudes ist eine mietbare Gewerbefläche geplant, dessen Struktur sich sowohl in eine Bürofläche mit Großraumcharakter, als auch in ein Büro mit mehreren Einzelräumen oder in eine Gastronomie umwandeln lässt. Die geplante Terrasse dient als kommunikativer Treffpunkt für Bewohner:innen und Mitarbeiter:innen des Hauses und stünde für Gastronomiezwecke zur Verfügung. Im ersten Obergeschoss befindet sich die offen und modern gestaltete Bürofläche mit Open-Space-Charakter von Eden Architekten mit Besprechungsräumen, Küchenbereich, Treff- und Austauschorten sowie Ruhebereichen für konzentrierte Arbeitsphasen.


Insgesamt sieben Wohnungen entstehen im zweiten Obergeschoss sowie im Dachgeschoss. Die vier Wohneinheiten im zweiten OG sind vollständig möbliert. Alle Wohnungen verfügen über stilvoll gestaltete Küchen und Bäder mit feinabgestimmten Farben und Materialien. Die gesamte Ausgestaltung des Neubaus ist qualitativ hochwertig und nachhaltig ausgewählt.



Projektinformationen
Vom Gründach über eine begrünte Balkonstrukur und Fassade zieht sich der Nachhaltigkeitsgedanke bis in die Außengestaltung. Bienenfreundliche Staudenbeete, klimaresistente Bäume und nachhaltige Materialien prägen das Außengelände. Auf dem Grundstück befinden sich 20 Stellplätze, zum Teil mit Wallbox, sowie eine ausreichende Anzahl an Fahrradstellplätzen. Das Wohn- und Geschäftshaus im KfW-40 Standard verfügt über eine Wärmepumpe mit einer Photovoltaikanlage. Die Kühlung erfolgt über die Geschossdecken und außenliegende Verschattungen.



































